Description
A New SoCal Bar in the Sky
Elevated 16 stories among the Orange County Skyline, Hive and Honey was made to be a central gathering place for the neighborhood and visitors alike. From happy hour to the late hour, guests come to see dramatic sunsets and stay into the night. The project was designed so that guests could soak up the views and enjoy a unique, open-air experience unlike any other in Orange County.
Located atop a hotel in the heart of Irvine, the rooftop bar looks out from the 405’s long stretch of expanse to Saddleback Mountain. As Bromic specifications leader Blake Petty noted, “The project was brought to us by the property developer who we have worked with on numerous other projects they have. We have also worked with the hotel chain across the globe on numerous projects. Both the developer and hotel have trust in Bromic not only in our products, but in our team from the upfront design service and technical support team that are there at every step of the way.”
Building off the growing trend of maximizing outdoor spaces and building rooftops, the clients wanted to showcase what developers and building owners can do with roofs that are usually underutilized. While many are turned into private gardens, bright terraces, or large amenity areas, Hive and Honey was made to be a new example of elevated dining and hospitality in the city.
Rooftop Architecture
A series of key design decisions were made that gave way to the shape and organization of the rooftop bar’s architecture. External columns around the patio edge combine with alternating support beams to create an airy, open space with a high ceiling height. These architectural forms were made with neutral colors to emphasize the views and provide a backdrop for the dining and gathering areas. The ceiling, floor, columns and walls share a common material palette, while the bar utilizes patterned tiles, metal detailing, and integrated lighting to stand out.
The Challenges
A key challenge for the rooftop space was that it needed to stay warm throughout the day and into the evening from the interior to the patio outside. As more consideration is given to how people move between indoor and outdoor spaces, there’s also further understanding of how this trend can create healthy, beautiful, and functional areas to come together. However, there are a few key obstacles that need to be addressed to optimize all-weather comfort.
Designing for the seasons, one of the best ways to maximize comfort and increase revenue is by integrating outdoor heaters. Outdoor heaters usually come in two main different types: freestanding and mounted. Which option is best for a specific design mainly depends on how much portability and floor space will be needed. If versatility is needed and the layout might change over time, then freestanding heaters create a great value-add for clients and building owners. In turn, for more permanent installation, wall or ceiling mounted heaters may work best. In terms of architecture, high lofty ceiling members needed a solution that wouldn’t block views of the skyline and keep the floor space open to provide a cohesive overall experience.
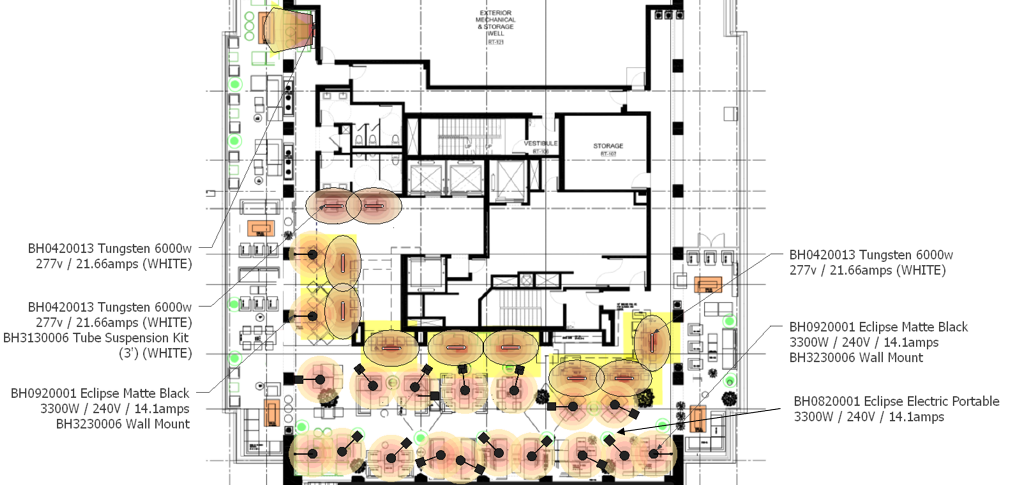
The Solution
At Hive and Honey, there was a strong desire to have direct warmth that could be moved when needed. This project was unique in that they have window washing equipment that is suspended over the side of the building. Due to this, they have to clear the patio of all furniture and cannot have anything mounted to the perimeter of the building as it would interfere with the window washing.
After the initial discussion using Bromic’s complimentary Design Service, the heating experts took a look at the architectural plans and mocked up a heat layout. The team then sent this back to the clients as a detailed heat plan with product specification sheets. For Hive and Honey, the solution was a combination of the Eclipse Portable heater, controlled by the Eclipse Dimmer Remote and the Tungsten Electric heater series, hardwired to a On/Off switches.
The Eclipse Portable heater series gives the rooftop bar the directional heat needed over each of the lounge areas and tables and gives the flexibility to disconnect and move the heaters out of the way during the window washing.
Being that this is on a rooftop and can get windy, the team wanted to use powerful Tungsten Electric heaters that are not affected by the wind like gas heaters can be. For ease of use, the heaters were hardwired to On/Off switches enabling employees to have independent control. At the same time, the white Tungsten Electric heaters blend in with the white ceiling and walls.
Customers love to come together outdoors, where they can enjoy good food, fresh air, and lively culture. After taking a look at the architectural plans and mocking up the heat layout, the Bromic team better understood the use of the Hive and Honey patio space, where furniture was going to be located, and where people would congregate. The result is an inspiring rooftop bar that brings hospitality design to new heights in Irvine.




